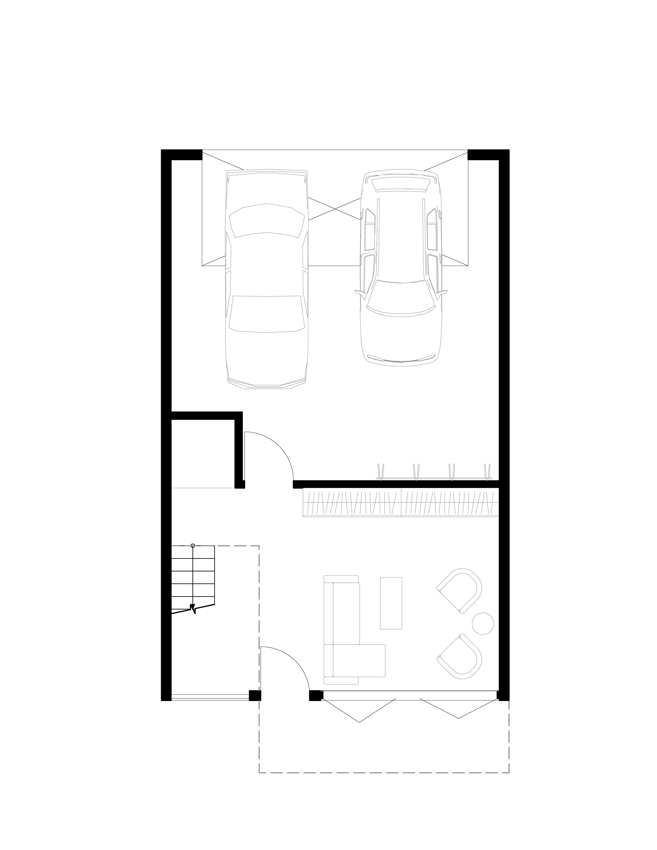
This arrangement features a large living area perfect for entertaining or relaxing, storage, and a two-car garage.

Ground Floor Options

Click any plan to begin exploring options in 3D

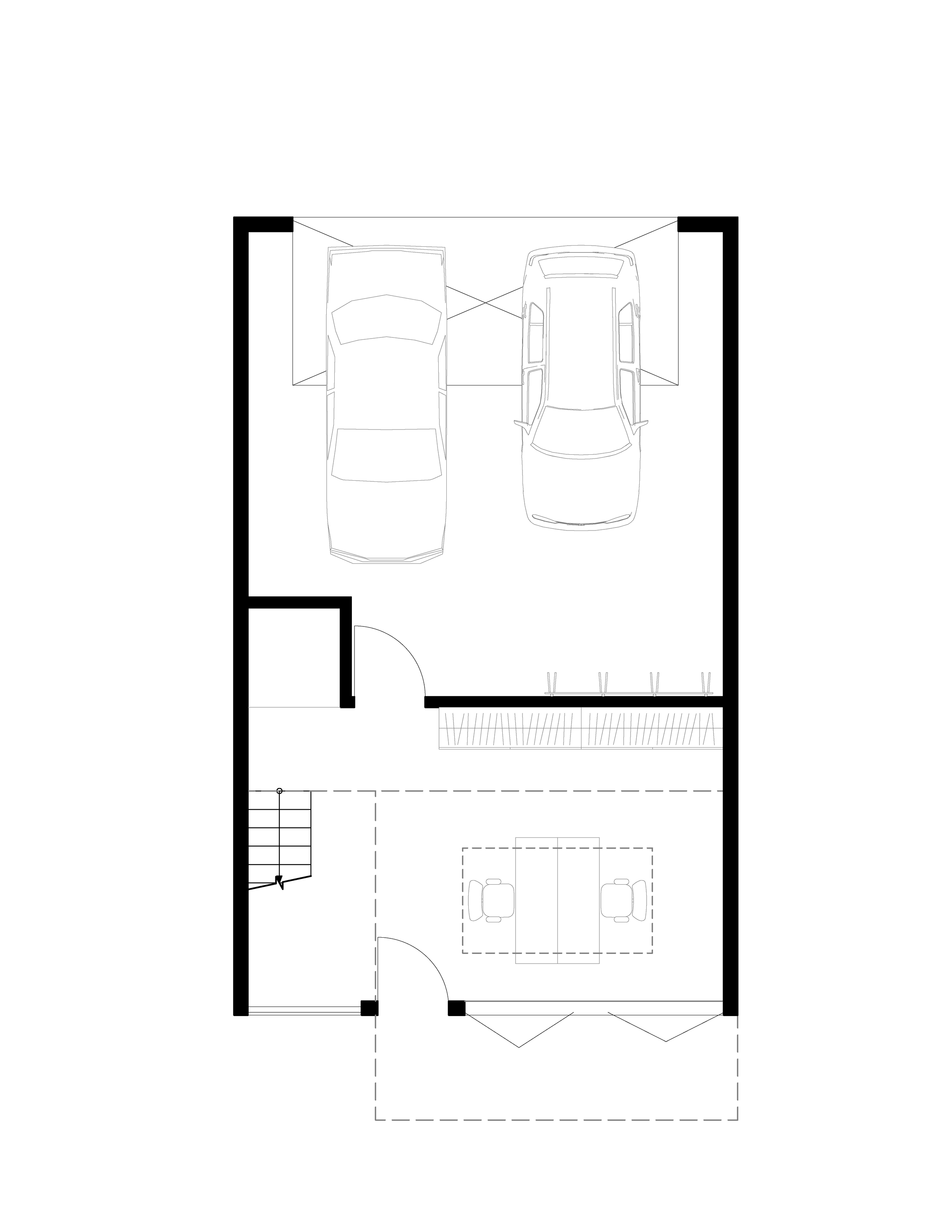
Similar to the Den/Living layout, the Mezzanine option features a Den space below with an overhead mezzanine that connects the Den to the Kitchen located on the floor above.

A compact, efficient ADU organized for one‑ or two‑person occupancy. The layout prioritizes sunlight, efficiency, and storage while keeping living areas public and the bedroom private.

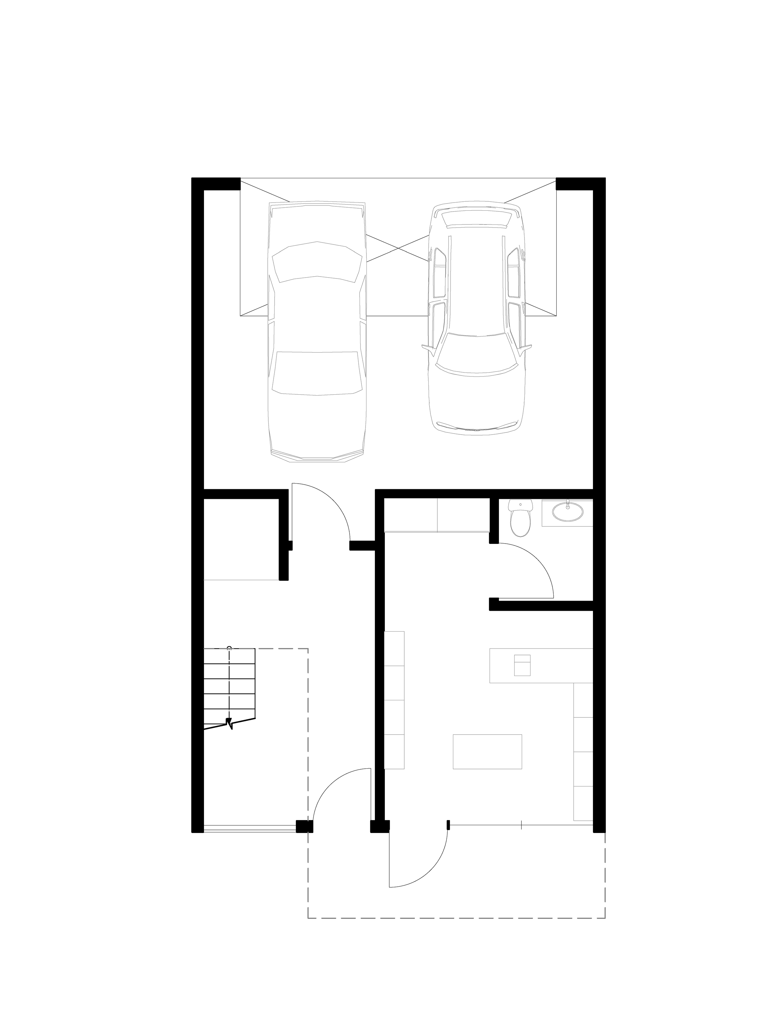
The Storefront option offers a storefront location with storage and private bathroom with maintaining separation from the living units.